产品中心

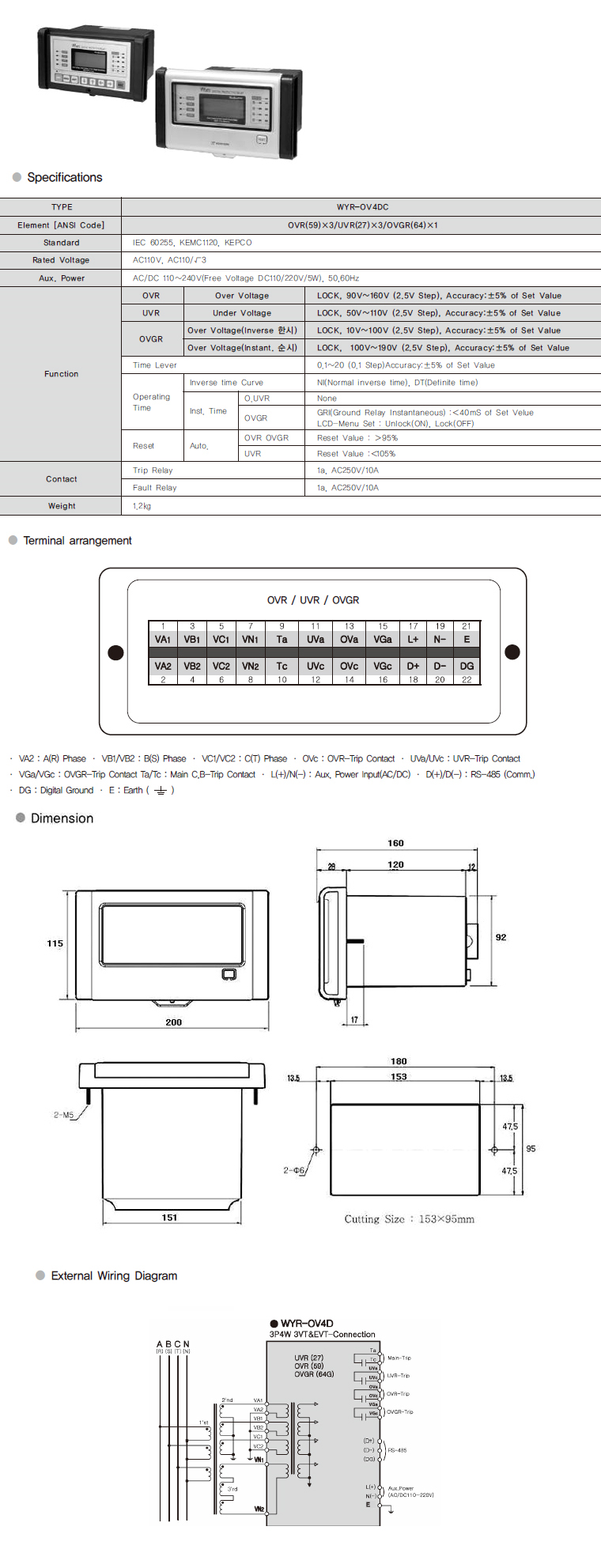
  • 类别 WYR-OV4DC Series
  • 型号 3Phase OVR/UVR/OVGR 抽出式 (27/59x3 64x1)
  • 等级(Rating) AC110V, AC110/√3
  • 输入(Input) 辅助电源AC/DC110~220V
  • 输出(Output)
  • 容量(Capacity)

Specifications and Features

·Fault Memory : Operating Current, Operating Time
·Element : OVR×3/UVR×3/OVGR×1
·Time Curve : Normal Inverse, Definite Time
·Communication : RS-485 (Modbus Protocol)
·Aux. Power : AC/DC(110∼240V) Free Voltage

11.jpg